Pharmaceutical Stability Testing Laboratory Tender Announcement
Pharmaceutical Stability Testing Laboratory Tender Announcement
I. Procurement Project Information
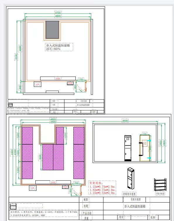
1. Project Name: Pharmaceutical Stability Testing Laboratory
2. Main Content of the Project: 1 set of walk-in pharmaceutical stability test chamber and 1 set of shelves
3. Procurement Specifications and Material Requirements: Must meet the technical parameters required for the pharmaceutical stability testing laboratory
4. Implementation Location: No. 10 Kangping Road, Liuyang Economic and Technological Development Zone
2. Description of the Equipment to be Procured
1. Detailed laboratory parameters can be found in the attached document. Do not bid if you cannot meet the technical parameter requirements.
2. The warranty period of the pharmaceutical stability testing laboratory is 1 year; after the warranty expires, only the cost of parts will be charged within the following 3 years (starting from the date of acceptance).
3. During the warranty period, if there is a device failure, the supplier is required to respond by phone within 30 minutes after being notified and arrange for a technician to arrive on-site within 36 hours to resolve the issue.
4. Payment Method: 30% advance payment upon contract signing, 60% within one month after the arrival, installation, commissioning, and acceptance of the goods with a full 13% VAT invoice, and 10% reserved as warranty, to be paid in full 12 months after the acceptance of goods at the buyer's factory.
3. Qualification Requirements for Bidders
1. Must have independent legal entity status and possess the required qualifications, level, and registered capital needed for the bidding project.
2. Must have the ability to fully perform the contract.
3. Must have independently completed similar projects in the past three years without any quality or safety incidents caused by management reasons or administrative penalties.
4. No major lawsuits as a defendant, respondent, or person subject to enforcement that could affect the performance of the bidding project contract.
5. Must comply with national laws and regulations and other requirements specified in the bidding documents.
4. Composition of the Bid Documents
1. Quotation section (including detailed equipment configuration list and unit prices of all accessories, transportation, taxes, after-sales service, and payment methods).
2. One set of photocopies of the following documents with the company stamp (to be retained): company qualifications, original power of attorney of the legal representative, brand authorization letter, photocopy of the ID cards of the legal representative and authorized person; after-sales service commitment; spare parts information (including a list of consumable and wear-resistant parts required by the equipment and supplier contact information).
5、 Binding and submission of bidding documents
1. Each bidding unit shall prepare their own bidding documents according to the requirements of the announcement for bidding;
2. The bidding party shall bind the quotation part and information of the bidding documents into a book and seal it;
3. After stamping and sealing, express delivery or delivery to our company;
4. Bidding documents with incomplete information beyond the deadline shall be deemed invalid;
5. On the day of the bid opening, the bidding party will send personnel to the site to participate in the bid opening and answer questions;
6. Mailing address: No. 10 Kangping Road, Liuyang Economic Development Zone, Changsha City, Hunan Province
Contact: Mr. Li: 15873338803
6、 Bid evaluation and determination method:
1. The evaluation method for this project adopts "competitive negotiation".
2. Method for determining the winning bidder: Based on the responsiveness of the bidding documents provided by the bidding unit and the comprehensive qualifications and cases of the bidding unit, the members of the evaluation team will comprehensively select a bidding unit to win the bid.
3. The qualification review method for this project is on-site qualification review.
7、 Composition of the Bid Evaluation Committee
The number of members in the bid evaluation committee shall be no less than 5, specifically composed of responsible persons from the Production Management Center, Quality Management Department, Finance Department, and company leaders.
8、 Bid deadline: 9:30 am on June 14, 2024 (Beijing time)
9、 Bid opening date: 9:30am, June 14, 2024 (Beijing time)
Bid opening location: No. 10 Kangping Road, Liuyang Economic Development Zone, Changsha City, Hunan Province
9、 Purchasing unit information
Purchasing unit: Hunan Chunguang Jiuhui Modern Traditional Chinese Medicine Co., Ltd
Address: No. 10 Kangping Road, Liuyang Economic Development Zone
Phone: 0731-83280788

-
2025-09-26
Hunan Chunguang Jiuhui Modern Traditional Chinese Medicine Co., Ltd. Announcement of Bid Winning Candidates for the Procurement Project of Radiation Food and Drug Testing Instruments
-
2025-09-19
Supplementary Notice for the Procurement Project of Radiation Food and Drug Testing Equipment by Hunan Chunguang Jiuhui Modern Traditional Chinese Medicine Co., Ltd
-
2025-09-15
Procurement project of irradiation food and drug testing equipment
Back





